ビルトインガレージモデルハウス《飯塚市忠隈》

ビルトインガレージモデルハウス《飯塚市忠隈》

 

飯塚市忠隈の新規分譲地に百田工務店 momotaHOMEのモデルハウスを建築中(4月末完成予定)。

こちらの販売スタートしました!

モデルハウス販売詳細はこちら

同分譲地で2区画注文住宅用地も販売中です。

ご興味ある方は、飯塚市椿の展示場モデルハウスにて詳細ご説明させて頂きますので、

お気軽にお問合せください。

もちろん現地ご案内も可能です!

 

《こんな分譲地です!》

飯塚駅・ゆめタウン・スーパーまで徒歩10分圏内で利便性◎

■買い物の利便性◎。ゆめタウン・スーパーまで徒歩10分!
■総合病院、歯科医院・耳鼻科・皮膚科クリニックなどすぐに病院に通いやすい環境
■お迎えいらず!飯塚駅まで徒歩10分。今年中に駅舎もリニューアル!駅前広場のある賑わいある駅に
■自然豊かな環境ながら、ちょっと出るだけで大人も楽しめるカフェやバー、ご飯屋さんがたくさん
■スイミング・英会話教室など徒歩圏内に子どもの習い事スクールあり
■住人のみが出入りする分譲地で防犯面も安心

 

●販売モデルハウス概要

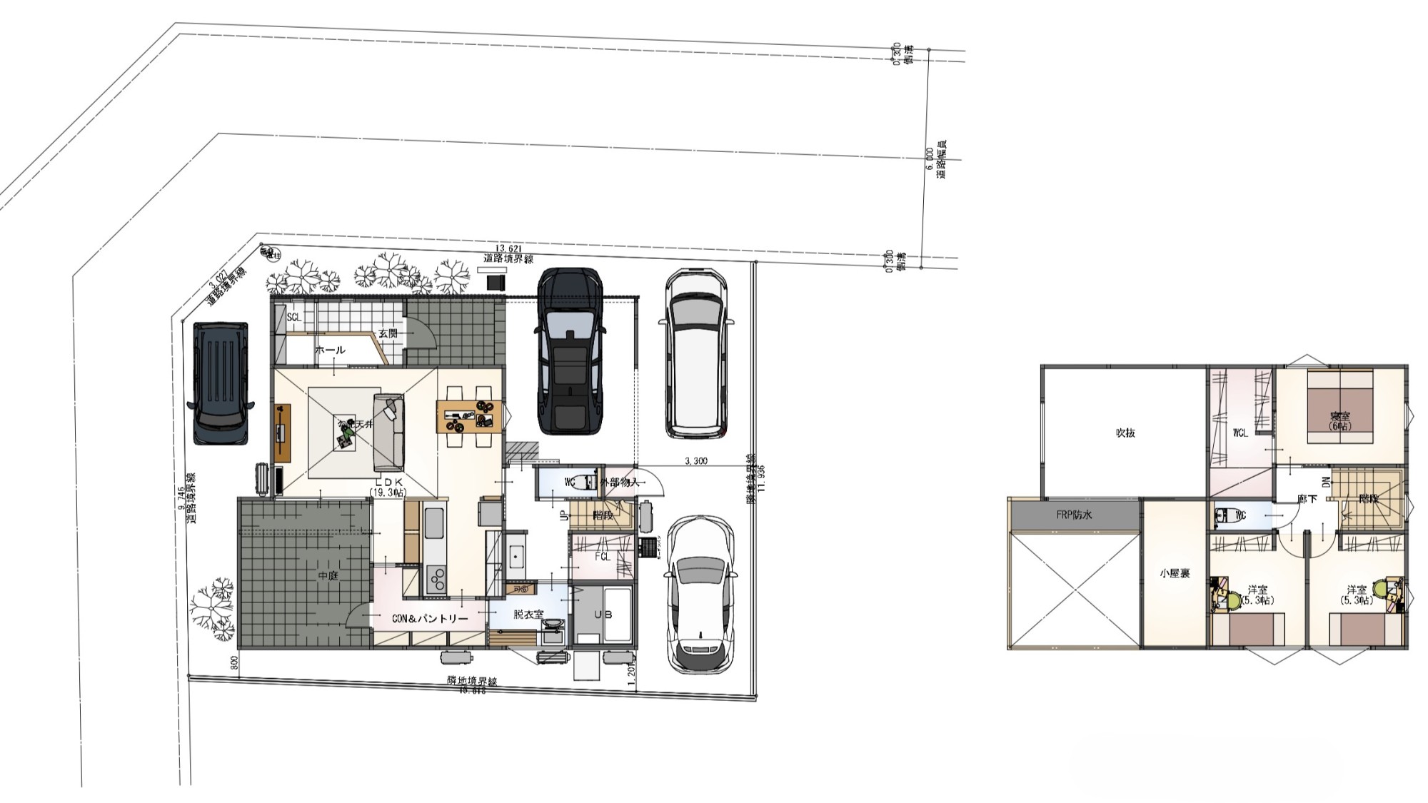
・ビルトインガレージ1台+3台の計4台駐車スペース

 ~車好きな方、複数台ご所有の方、ご来客が多い方

・軒を出した木格子の和モダンな外観

 ~上品で重厚感あるデザインがお好みの方

・中庭と吹き抜けで明るく開放的なLDK空間

 ~外部の視線をシャットアウトしながら開放的な暮らしを実現したい方

・大容量パントリーをはじめ収納率20%

 ~毎日忙しいからストック派の方、LDKは常にきれいに保っておきたい方

・キッチン、水廻り動線は最短に設計

 ~家事をなるべく時短したい方、お洗濯をなるべく一ヶ所で済ませたい方

 

同分譲地 注文住宅用地詳細はこちらから

ご興味ある方はお問い合せフォームからご予約ください。ご予約いただいた後に担当よりご連絡させていただきます。

 

説明会受付中
飯塚市椿にある展示場モデルハウスでご説明させていただきます。 現地ご案内も可能です!
お問合せ先 百田工務店 本社
ビルトインガレージ含む4台駐車スペース

ビルトインガレージ含む4台駐車スペース

 

 

 

 

 

 

ビルトインガレージで車もデザインに取り込む

ビルトインガレージで車もデザインに取り込む

中庭のある吹き抜けLDK

中庭のある吹き抜けLDK

家族だけの完全プライベート屋外空間『中庭』

家族だけの完全プライベート屋外空間『中庭』

アクセス

飯塚市忠隈

お問合せ先 百田工務店 本社
この記事をシェアする
フェイスブック ツイッター
前の記事へ
一覧へ戻る
次の記事へ
イベント
お問い合わせ